Um höchsten Ansprüchen bei Sicherheit, Langlebigkeit und Energieeffizienz zu genügen, kommen beim Hausbau heutzutage viele technische Innovationen zum Einsatz. Über das Innere der Hebeschiebetür aus Kunststoff gibt daher eine Detailzeichnung Auskunft, ebenso wie genaue Angaben zu den Systemwerten. Die folgenden Schnitte erlauben Ihnen den Einblick in die Kammerstruktur von Kunststoffprofilen, die zu Recht zu den energiewirksamsten und wärmedämmendsten Profilen zählen und zudem leicht einzusetzen und zu pflegen sind. Gerade PVC-Hebeschiebetüren sind daher ein Must-have.
HST IDEAL Basic
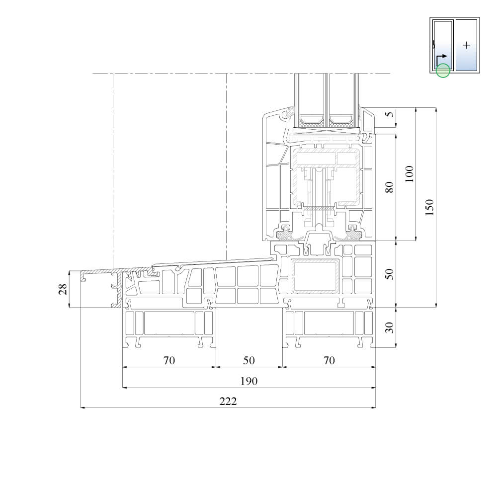
Links innen Schiebeflügel
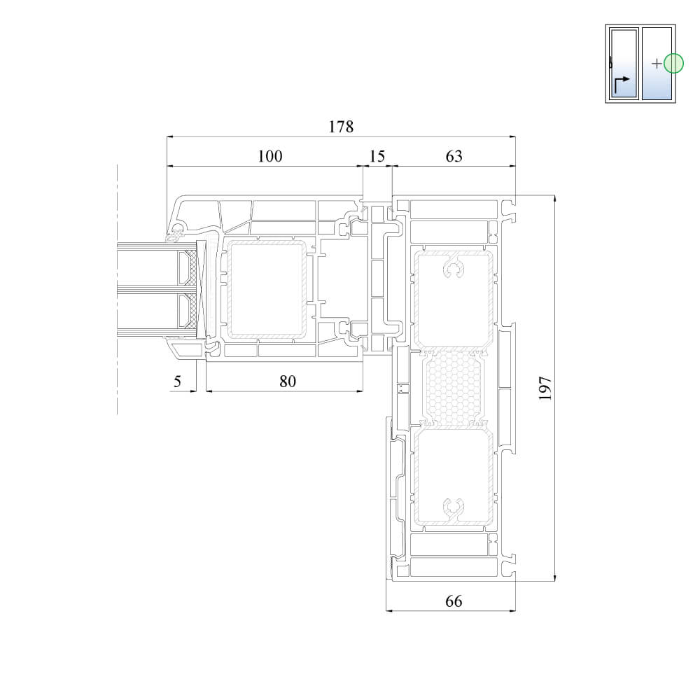
Mittelstoß
Mittelstoß bei Stulptüren
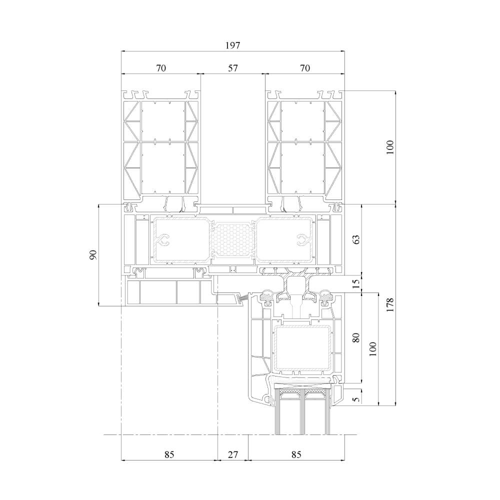
Vertikalschnitt des oberen Rahmens und der unteren Schwelle
Kömmerling Premidoor 76
Premidoor 76 Mittelstoß
Premidoor 76 Mittelstoß bei Stulptüren
Premidoor 76 Rahmenverbreiterung 15 mm
Premidoor 76 Rahmenverbreiterung 30 mm
Premidoor 76 Rahmenverbreiterung 60 mm
Premidoor 76 Rahmenverbreiterung 120 mm
Premidoor 76 Glasteilende Sprosse 84 mm
Premidoor 76 Rollladendeckelaufnahme Neubau
Premidoor 76 Rollladenführungsschiene Neubau
Premidoor 76 Schiebeflügel oben
Premidoor 76 Schwelle und Schiebeflügel
Hoher Einbruchschutz und alle Funktionen im Einzelnen
Anhand der Detailzeichnung für die Hebeschiebetür aus Kunststoff lassen sich die konkreten Werte der möglichen Energieeinsparung, des geringeren Kohlenstoffdioxidausstoßes und Heizgradtage für das jeweilige Kammersystem ablesen. Je nachdem, um welches System es sich handelt, ergeben sich hier Unterschiede, die für die Heizkosten relevant sind. Zusätzlich werden auch optionale Elemente aufgeführt. So lässt sich etwa mit Sicherheitspaketen die Zahl der Beschläge im Rahmen erhöhen, der Einbruchsschutz steigt dadurch zusammen enorm und auch lange Abwesenheiten bereiten kein mulmiges Gefühl mehr.
Auch individuell wählbare Auswahlmöglichkeiten, wie die verfügbaren Beschlagfarben von Türgriffen, sind aufgeführt. Vor allem aber verraten Schemata, welche verschiedenen Anordnungen im Zusammenspiel mit Fenstern etc. machbar sind. Die einzelnen Schallschutzstufen, die durch spezielle Schallschutzverglasung erreicht werden können sowie weitere technische Details runden den genauen Einblick ab. So können sich auch Laien dank einer Detailzeichnung genau und übersichtlich informieren und dann das für sie persönlich am besten geeignete Produkt auswählen. Sei es eine Hebeschiebetür aus Kunststoff oder ein anderes Modell.
Bitte beachten Sie, dass es sich hierbei um Standardzeichnungen handelt. Wenn Sie vor dem Bestellvorgang genau wissen möchten, welche Profile, Modelle und Bauteile verbaut werden, kontaktieren Sie bitte unseren Kundenservice unter 0711 860 600 oder per E-Mail an info@fensterversand.com. Unsere Experten helfen Ihnen gerne bei der Konfiguration und beantworten Ihre Fragen zu unseren Produkten.